DNG O'Sullivan Hurley are delighted to welcome this large detached property over 2,100sq.ft. to the market for sale by online auction on Friday 27th June 2025.
This large property has been vacant for a number of years and requires full refurbishment but there is potential to attain substantial grants towards any modernisation works. Of original stone build the property has a history of being a family home and shop from original construction to being one large detached residential property for the over 40years. There is significant potential to redevelop into one large residential dwelling or indeed into potentially two semi detached dwellings or apartments subject to planning permission. There is currently no services connected but previous connections to electric, water and village sewer line were in place. All built preplanning of stone build there are two dwellings which are connected with doorway on the ground floor with separate access to first floors in each building and a further single story extended building to the rear. The site has off street parking to the front with initial courtyard garden area to rear leading to further large private enclosed garden space.
Local primary school, Gaa facilities, pubs, village cafe and all local amenities are within walking distance with Kildsyart along Shannon Estuary Way about five minutes drive with further access to the Wild Atlantic Way on Clare's West coast from here. Ennis Town Centre and access to the M18 Limerick/Galway/Shannon motorway is within 15minutes drive making this ideal village and countryside living yet easy access to major services and amenities. This property offers excellent potential and viewings can be arranged on request.
• Floor Area 197sq.m. (2,120sq.ft.)
• Site Size Approx 0.25Acres
• Grant Potential to Renovate
• Village Centre Location
• Private Garden Space
• Previous Connection to Sewer line, Electric and Water
• Potential to Renovate to One Large Property or a Number of Units
• Less than 15 minutes to Ennis Town Centre and M18 Motorway
Reception Room 3.6m x 6.3m (11'10" x 20'8")
Entrance door to front with access to all sides of property on ground floor.
Kithen/Living/Dining 5.6m x 7.7m (18'4" x 25'3")
Was originally a shop with door to front but excellent potential now as a large open plan kitchen/living/dining space with front and rear door access and windows. Stairs to first floor on this part of building.
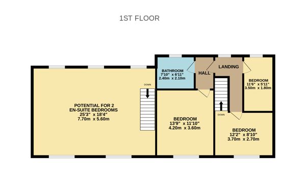
Potential 2 Bedrooms First Floor 7.7m x 5.6m (25'3" x 18'4")
Above original shop, large open plan layout at present but previously bedrooms and could be converted to large living space or a number of ensuite bedrooms if desired
Sitting Room 6.3m x 3.7m (20'8" x 12'2")
Original reception room with front and side windows, solid fuel fireplace and stairs to first floor bedrooms.
Reception Room 3.7m x 5m (12'2" x 16'5")
Extended single story building to rear with access from main dwelling and double doors to rear garden space. Potential for different options depending on ones requirement.
Landing
Doors to bedrooms and bathroom with rear window
Bedroom 3.7m x 2.7m (12'2" x 8'10")
Front aspect window
Bedroom 1.8m x 3.5m (5'11" x 11'6")
Rear aspect window
Bedroom 3.6m x 4.2m (11'10" x 13'9")
Main bedroom with front aspect window
Bathroom 2.1m x 2.4m (6'11" x 7'10")
Rear aspect window
Outside
Off street parking to front of property. Initial courtyard garden area to the rear of the property with access further to large garden space.
View a Virtual Tour
Submit an enquiry and someone will be in contact shortly.
By setting a proxy bid, the system will automatically bid on your behalf to maintain your position as the highest bidder, up to your proxy bid amount. If you are outbid, you will be notified via email so you can opt to increase your bid if you so choose.
If two of more users place identical bids, the bid that was placed first takes precedence, and this includes proxy bids.
Another bidder placed an automatic proxy bid greater or equal to the bid you have just placed. You will need to bid again to stand a chance of winning.