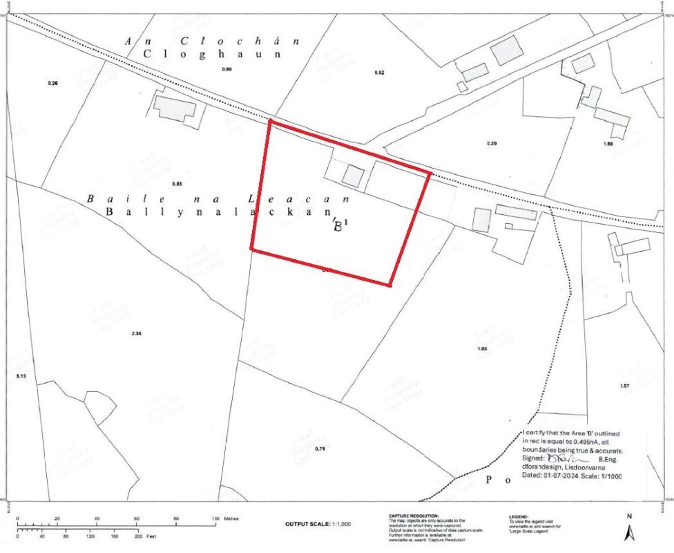
Set in the townland of Ballinalacken with front aspect sea views of the Atlantic Ocean in the distance, the dwelling is located approx. 4kms from the north Clare town of Lisdoonvarna and 8kms from the very popular coastal village of Doolin. Homes in the area are a mixture of permanent residential homes, holiday homes and farm holdings. A fantastic location situated along the magical Wild Atlantic Way with uninterrupted sea views.
The dwelling while in need of refurbishment offers the prospective buyer the opportunity to design and modernize the building to their own requirements. The generous site offers potential to extend and renovate if one desires, subject to planning permission.
The property has been vacant for a number of years and may qualify for vacancy grants ( for qualifying applicants and subject to terms and conditions).
This would make an ideal family /holiday home in the tranquil setting of North Clare on the doorstep of the The Burren National Reserve and close to nearby villages and towns of Lisdoonvarna, Fanore, Ennistymon, Ballyvaughan and Liscannor.
A rare opportunity to acquire such a property in this highly sought after location with views of Ballinalacken Castle, the Atlantic Ocean, the Aran Islands, the Cliffs of Moher and the Hills of Connamara.
Main Entrance Hallway 5.3m x 1m (17'5" x 3'3")
Main Reception 4.4m x 4m (14'5" x 13'1")
Front aspect windows with views of the Atlantic Ocean and Fanore
Kitchen 2.3m x 1.5m (7'7" x 4'11")
Front aspect windows with views of the Atlantic Ocean
Reception Two 3.3m x 3m (10'10" x 9'10")
Rear aspect window. stanley stove
Rear Hallway 1.1m x 1.1m (3'7" x 3'7")
Bedroom One 3.2m x 2.5m (10'6" x 8'2")
Open fireplace
Bedroom Two 3.2m x 2.7m (10'6" x 8'10")
Main Bathroom (L Shaped) 2.9 (9'6")m x 1.5 (4'11")m & 1.2 (3'11")m x 1.1 (3'7")m
Attic Storage 3.7m x 3m (12'2" x 9'10")
Storage into the eves and side aspect window.
Submit an enquiry and someone will be in contact shortly.
By setting a proxy bid, the system will automatically bid on your behalf to maintain your position as the highest bidder, up to your proxy bid amount. If you are outbid, you will be notified via email so you can opt to increase your bid if you so choose.
If two of more users place identical bids, the bid that was placed first takes precedence, and this includes proxy bids.
Another bidder placed an automatic proxy bid greater or equal to the bid you have just placed. You will need to bid again to stand a chance of winning.